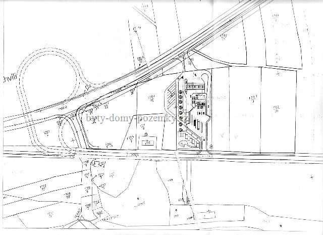
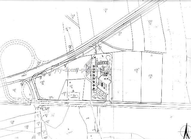
Pozemek u obce Postoloprty, okr.Louny.

Lokalita:okres Louny, Praha - Chomutov.Postoloprty, trasa výstavby dálnice R
Na prodej:100 Kč
100 Kč/m2
Plocha pozemku:9755 m2
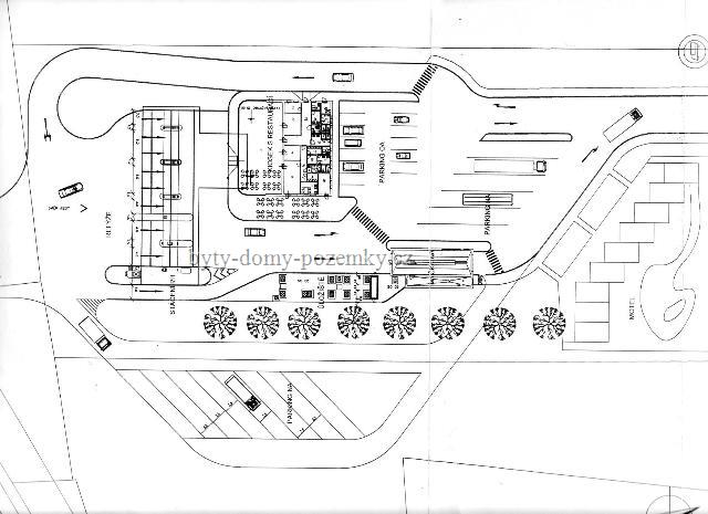
Pozemek se nachází u obce Postoloprty - směr Chomutov. Výměra je 9755 m2, cena je 100,- Kč/m2. Vypracována studie na výstavbu čerpací stanice s restauraci,myčkou OA a velkým parkovičtěm pro OA,TIR a BUS.NENÍ PODMŃKOU.Možnost jiné výstavby.Sítě na hraně pozemku.V okolí vesnická zástavba RD.
Kontakt na makléře:777600205
Kontakt na prodejce/RK:

Romana Presslerová

Hlávkova 1380,Teplice
tel.: 777600205
email: ivanapresslerova@seznam.cz kontaktní formulář
 
Inzerát zapsán:11. 6. 2009
Zobrazení:1881x
Sdílet:Bookmark and Share
* Podpořte tento bezplatný server a při kontaktu s prodejcem uveďte, že jste jeho nabídku nalezli na BYTY-DOMY-POZEMKY.cz. Děkujeme!

Zobrazit kompletní nabídku prodejce | Kontaktovat prodejce | Poslat emailem | Vytisknout leták