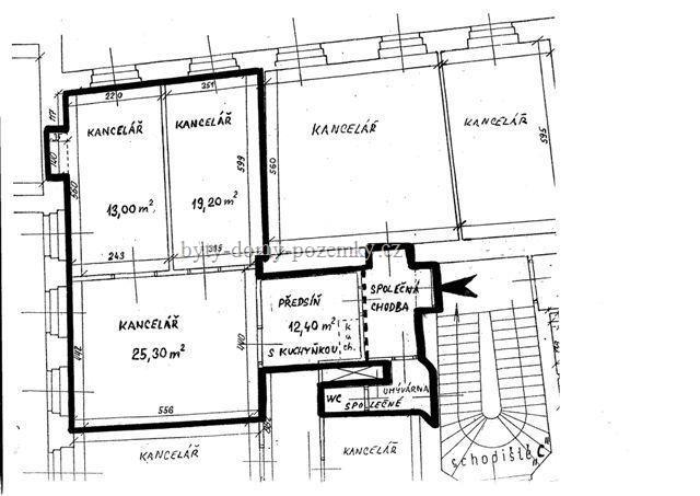
Kancelář.prostory, Praha1 - Nové Město, ul. Národní, 70m²| Lokalita: | okres Praha 1, P 1 SM Národní | | Na prodej: | 27 000 Kč viz text | Nabízíme 3 kancelářské místnosti,70m² + spol.chodba a sociální zař. s umývárnou a WC cca 10m² ve 2. patře činžovního domu bez výtahu. Kanceláře se pronajímají nezařízené. Pouze v kouchyňce je linka. Volné od 1.4.2009. (+3500,-služby + 1500,-Kč el)
| | Kontakt na makléře: | 775966623 Petra Najmanova, 606362386 Jitka | | Kontakt na prodejce/RK: | XT REALITYKoněvova 1229/98, 130 00 Praha 3 - Žižkov tel.: 775 966 623 email: info@xtreality.cz kontaktní formulář | | Inzerát zapsán: | 13. 2. 2009 | | Zobrazení: | 1617x | | Sdílet: |  | * Podpořte tento bezplatný server a při kontaktu s prodejcem uveďte, že jste jeho nabídku nalezli na BYTY-DOMY-POZEMKY.cz. Děkujeme!
Zobrazit kompletní nabídku prodejce | Kontaktovat prodejce | Poslat emailem | Vytisknout leták |
|
|