Prodej RD 5+kk

Lokalita:okres Zlín, Zlín, okr. Zlín
Na prodej:15 800 000 Kč
15 800 000 Kč
Plocha pozemku:402 m2
Zastavěná plocha:121 m2
Užitná plocha:179 m2
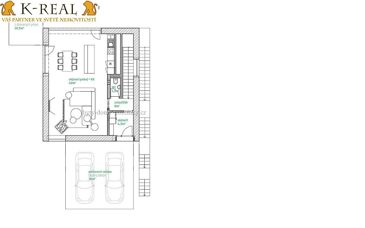
Prodej rodinného domu 179 m², pozemek 402 m²
Šípková, Zlín - Příluky

Se svolením majitele vám nabízíme prodej moderního rodinného domu 5+kk s nádherným výhledem a nadstandardním vybavením. Nachází se ve Zlíně na ulici Šípková. Dům o užitné ploše 179 m², postavený na pozemku o rozloze 402 m², je vybudován z kvalitního systému Heluz 50 Family, což zajišťuje vynikající tepelnou izolaci a energetickou úspornost v kategorii B. Nadčasový interiér podtrhují pohledové betonové stropy a masivní dřevěná podlaha. Otevřené prostory jsou prosvětleny díky bezrámovým hliníkovým oknům, které maximalizují přirozené světlo a poskytují nádherný výhled na okolní krajinu. Vnitřní prostory doplňují bezfalcové dveře, které zdůrazňují minimalistický design domu.

První podlaží je navrženo jako samostatná bytová jednotka 1+kk, kterou lze přizpůsobit vašim požadavkům. Součástí vybavení je podlahové topení s plynovým zdrojem, které zajišťuje komfortní teplo po celý rok. Elektroinstalace je připravena pro dobíjení elektromobilů a instalaci fotovoltaické elektrárny. Exteriér domu nabízí letní terasu ideální pro odpočinek, příruční sklad a dvě parkovací místa

V ceně domu je dřevěná dubová podlaha, dveře se skrytými zárubněmi, vybavení koupelen, obklady a dlažby, zábradlí, stropní i venkovní světla, zásuvky i vypínače, dřevěná terasa, výmalba, terénní úpravy, kamerový systém a oplocení.

Pokud hledáte ideální bydlení v atraktivní a klidné lokalitě, je tento dům ideální právě pro vás.

Cena: 15 800 000,- Kč bez provize RK

Infrastruktura:

Vodovod: Vodovod, Retenční nádrž na dešťovou vodu

Plyn: Plynovod

Elektřina: 230V, 380V, 3 fáze

Jistič: 25A

Zdroj vytápění: Plynový kondenzační kotel

Vytápěcí těleso: Podlahové vytápění

Kanalizace: Veřejná kanalizace

Telekomunikace: Telefon, Internet

Poskytovatel internetu: i2net

Rychlost internetu: 1 000 Mbit/s

Typ internetového připojení: Vzduchem

Doprava: Vlak, Dálnice, Silnice, MHD, Autobus

Komunikace: Asfaltová

Plocha:

Plocha pozemku 402 m²

Užitná plocha 179 m²

Zastavěná plocha 121 m²

Celková plocha 195 m²

Zahrada o ploše 285 m²

Lokalita:

Klidná část obce, Bydlení

Ostatní:

K nastěhování 15. 3. 2026
Kontakt na prodejce/RK:K-REAL

K-REAL

Koniklecova 5, 634 00 Brno
tel.: 602 778 256
email: k-real@email.cz kontaktní formulář
 
Inzerát zapsán:12. 1. 2026
Zobrazení:9x
* Podpořte tento bezplatný server a při kontaktu s prodejcem uveďte, že jste jeho nabídku nalezli na BYTY-DOMY-POZEMKY.cz. Děkujeme!

Zobrazit kompletní nabídku prodejce | Kontaktovat prodejce | Poslat emailem | Vytisknout leták