NOVOSTAVBA 5+kk Březina

Lokalita:okres Brno-venkov, Brno
Na prodej:0 Kč
4700 000kč
Plocha pozemku:287 m2
Zastavěná plocha:75 m2
Užitná plocha:130 m2
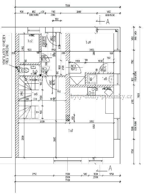
Jednopodlažní,nepodsklepený dům s obytným podkrovím.Stavba je zděná z keramických tvárnic se zateplenou fasádou(15cm izolace),strop je panelový,dřevěný krov s keramickou taškou.Před domem a vedle domu je parkovací stání pro celkem 2 auta,jedno stání je kryté přístřeškem. V I.podlaží je vstupní hala se šatnou spojená s obývacím pokojem a kk.WC,koupelna-šatna,pokoj nebo pracovna.Z obývacího pokoje výstup na terasu do zahrady.Schodiště jednoramenné zalomené. II.NP-3pokoje,WC,koupelna-podlahové topení-vana.Jeden pokoj má svou lodžii. RD je napojen na elektřinu ,přípojka vody z obecního řádu,splašková kanalizace svedena do jímky před domem.Po napojení hlavní obecní kanalizace na čističku odpadních vod(cca 7měsíců) bude moci být napojena splašková kanalizace mimo septik do připraveného hlavního řádu v komunikaci.Na zahradě umístěná nádrž na zachycení dešťové vody pro závlahu. Dům se předá kompletně hotový termín dokončení 31.7.2009 Zateplení fasády: izolace tl. 15 cm Podlaha v I.NP: izolace 8cm Střecha:izolace tl. 20cm Vytápění :elektricky ZP: 73.5m2 PP:112m2 Parcela:287m2 Zastřešená terasa:28m2 Přístřešek pro auto
Kontakt na makléře:Pařízková Hana 776054512
Kontakt na prodejce/RK:

Hana Pařízková

Kobližná 19
tel.: 776054512
email: parizkova.hana@seznam.cz kontaktní formulář
web: www.progressreality.com
 
Inzerát zapsán:20. 10. 2009
Zobrazení:2751x
Sdílet:Bookmark and Share
* Podpořte tento bezplatný server a při kontaktu s prodejcem uveďte, že jste jeho nabídku nalezli na BYTY-DOMY-POZEMKY.cz. Děkujeme!

Zobrazit kompletní nabídku prodejce | Kontaktovat prodejce | Poslat emailem | Vytisknout leták