Byt. dům po rekonstr. v klidné části Liberce poblíž centra, v domě 3 b

Lokalita:okres Liberec, Liberec X - Františkov, ulice Hraniční
Na prodej:5 480 000 Kč
cena včetně provize RK
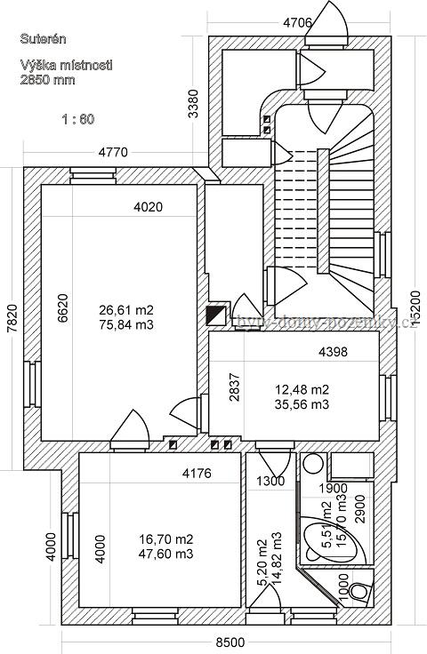
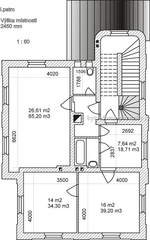
Plocha pozemku:245 m2
Zastavěná plocha:145 m2
Užitná plocha:380 m2
Ve výhradním zastoupení nabízím samostatný 5.podlažní dům, po kompletní rekonstr., nacházející se v Liberci X - Františkově,v ul. Hraniční, poblíž centra a zároveň v klidné slepé ulici s dobrým parkováním, vhodný k bydlení i podnikání nebo propojení obojího: ubytování, kanceláře, ordinace, masáže, atd..V domě se nachází 3 byty po rekonstrukci cca 80m2: 2+1,3+kk,3+1, dále volná půda 80m2 s možností výstavby bytu a suterénní sklepní prostory 42m2- možnost vybudování dalších nebytových prostor k podnikání. Provedená rekonstrukce vnitřní: topení, voda, koupelny, WC, kuch.linky, podlahové krytiny, vnitřní omítky a dveře. Byty mají vlastní el. bojlery pro ohřev vody a elektrické kotle /k vytápění/. Byt 2+1 v 1.NP má krbová kamna v obývacím pokoji. Byt 3+kk ve 2.NP má připravený prostor na krbová kamna v obývacím pokoji. Oba byty mají samostatné komíny /nově vyvložkované/. Byt 3+1 v 2.NP má zateplený strop /odizolován od půdy/. Do bytu 2+1 v 1.NP je možno vstoupit i ze spodní části domu, kde je zhotoveno zastřešení a prostor je vydlážděn. V domě jsou i další společné místnosti + WC v přízemí domu ve společných prostorách poblíž výstupu na zahradu a ven z domu. K domu náleží udržovaná zahrada o velikosti 200m ke společnému užívání a posezení. Dům má po rekonstrukci: fasádu včetně zateplení, střechu, plastová okna a vlastní čističku odpadních vod.
Kontakt na makléře:Máslíková, tel. 602369725
Kontakt na prodejce/RK:

Reality Máslíková

Tuchom 71 , okres Nymburk
tel.: 602369725
email: maslikovap@post.cz kontaktní formulář
 
Inzerát zapsán:9. 10. 2012
Zobrazení:2675x
Sdílet:Bookmark and Share
* Podpořte tento bezplatný server a při kontaktu s prodejcem uveďte, že jste jeho nabídku nalezli na BYTY-DOMY-POZEMKY.cz. Děkujeme!

Zobrazit kompletní nabídku prodejce | Kontaktovat prodejce | Poslat emailem | Vytisknout leták