Prodej bytu 3+kk

Lokalita:okres Praha 8, Karlín
Na prodej:7 000 000 Kč
7 000 000CZK/Objekt
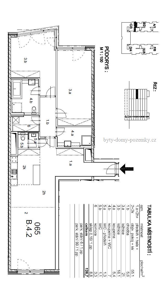
Nabízíme k prodeji nový byt 3+kk o celkové výměře 127 m2, 3NP, v komplexu River Diamond, Rohanské nábřeží, Praha 8. Byt je vybaven dvěma koupelnami, toaleta zvlášť, šatna. Budova je chráněna 24h ostrahou. K bytu náleží parkovací stání ve společné garáži a sklep, vše v ceně. Orientace – východ, západ.
Cena 7 000 000,-Kč
Kontakt na prodejce/RK:

Jiří Tomášek

Zvonařka 1a, Praha 120000
tel.: 777449401
email: jirka@propertyinprague.com kontaktní formulář
 
Inzerát zapsán:20. 9. 2012
Zobrazení:2026x
Sdílet:Bookmark and Share
* Podpořte tento bezplatný server a při kontaktu s prodejcem uveďte, že jste jeho nabídku nalezli na BYTY-DOMY-POZEMKY.cz. Děkujeme!

Zobrazit kompletní nabídku prodejce | Kontaktovat prodejce | Poslat emailem | Vytisknout leták