Pronájem zděného, moderního bytu 2+1 komplet zařízeného, Rychnov n. K.

Lokalita:okres Rychnov nad Kněžnou, Jiráskova, Rychnov nad Kněžnou
K pronájmu:5 500 Kč
5.500,- Kč/měs. + energie
Užitná plocha:69 m2
Obytná plocha:69 m2
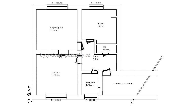
Nabízíme Vám k pronájmu velice hezký, moderně zrekonstruovaný byt 2+1 ve zděném bytovém domě v Jiráskově ulici, v Rychnově nad Kněžnou. Bytová jednotka o výměře 69 m2 je situována do 1.NP třípodlažní budovy a náleží k ní sklepní kóje o výměře 10 m2. Byt je ve výborném stavu, po kompletní rekonstrukci a nabízí se plně zařízený moderním nábytkem a spotřebiči – manželská postel, stolky, pracovní stůl, jídelní stůl, židle, TV, pračka, lednička, kuchyňská linka s vestavěnými spotřebiči včetně myčky. Nájemné je požadováno ve výši 5.500,- Kč + zálohy na energie a služby spojené s užíváním bytu ve výši 4.000,- Kč. Majitelé vzhledem ke stavu a zařízení bytu požadují vratnou kauci ve výši 15.000,- Kč. Provize RK ve výši jednoho měsíčního nájmu. Byt je volný od 1.7.2013.
Zakázkové číslo:49112
Kontakt na makléře:Věra Moravcová 773 996 130
Kontakt na prodejce/RK:Athena reality, s.r.o.

Athena reality, s.r.o.

Veverkova 1343, 500 02 Hradec Králové
tel.: 773996130
email: info@athenareality.cz kontaktní formulář
 
Inzerát zapsán:26. 6. 2013
Zobrazení:2379x
Sdílet:Bookmark and Share
* Podpořte tento bezplatný server a při kontaktu s prodejcem uveďte, že jste jeho nabídku nalezli na BYTY-DOMY-POZEMKY.cz. Děkujeme!

Zobrazit kompletní nabídku prodejce | Kontaktovat prodejce | Poslat emailem | Vytisknout leták