Prodej bytu ul. Šafaříkova

Lokalita:okres Praha 2, Vinohrady
Na prodej:4 158 000 Kč
4 158 000
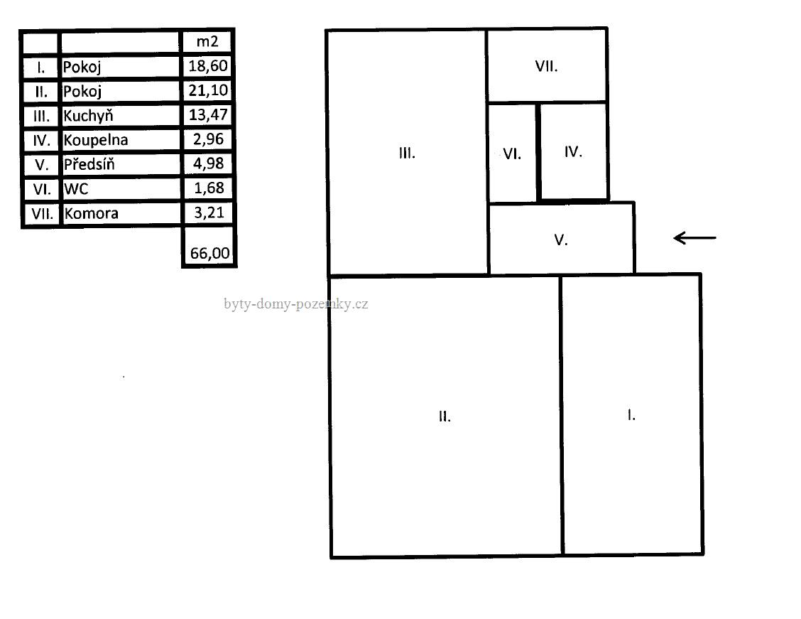
Nabízíme k prodeji prostorný byt 2+1 o ploše 66 m2, ve 4. NP (3.patro) cihlového domu s výtahem ve velmi atraktivní, klidné a výborně dostupné lokalitě ul. Šafaříkova, Praha 2 – Vinohrady.Byt je v dobrém stavu s kuchyňskou linkou, centrální vytápění. Výměra místností: pokoje 21 m2 a 18,60 m2, kuchyň 13,5 m2, koupelna 3 m2, WC 1,7 m2, předsíň 5 m2, komora 3,2 m2. Dům ve velmi dobrém stavu. V domě vlastní kotelna, centrální vytápění. Vynikající lokalita, veškerá infrastruktura v místě, metro, tram. OV, lze financovat hypotékou. Cena 4 158 000,-Kč
Kontakt na makléře:777449401
Kontakt na prodejce/RK:

Jiri Tomášek

Na Zvonařce 1A Praha 2 12000
tel.: 777449401
email: lenka@relocation.cz kontaktní formulář
 
Inzerát zapsán:1. 11. 2012
Zobrazení:2227x
Sdílet:Bookmark and Share
* Podpořte tento bezplatný server a při kontaktu s prodejcem uveďte, že jste jeho nabídku nalezli na BYTY-DOMY-POZEMKY.cz. Děkujeme!

Zobrazit kompletní nabídku prodejce | Kontaktovat prodejce | Poslat emailem | Vytisknout leták