2+1 o velikosti 87,4 m P1 Narodni tř.

2+1 o velikosti 87,4 m  P1 Narodni tř.
Lokalita:okres Praha 1, P 1 NM Národní
K pronájmu:18 000 Kč
18000
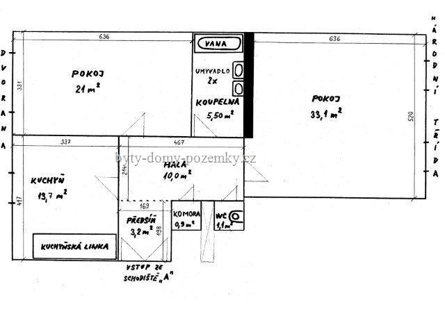
byt 2+1 o velikosti 87,4 m2 – po rekonstrukci k pronájmu od 1.3.2009, 5.patro, orientace severojižní, okna do ulice i do vnitrobloku, služby zálohově pro jednu osobu 2 000,- Kč, 2 osoby 3 000,- Kč , 3 osoby 4 000,- Kč atd., ústřední vytápění a teplá voda, parkování: pouze na ulici – zóna, elektroměr bude převeden na nájemce, smlouva na dobu určitou nejméně na ½ rok, nejvíce 1 rok s možností roční opce, podlahy: pokoje – parkety, předsíň a kuchyň – lino, koupelna a WC dlažba, nepřetržitá ochrana celého domu bezpečnostní agenturou, telefony, internetové připojení přes vlastní telefonní ústřednu
Kontakt na makléře:775966623 Petra Najmanova
Kontakt na prodejce/RK:

XT REALITY

Koněvova 1229/98, 130 00 Praha 3 - Žižkov
tel.: 775 966 623
email: info@xtreality.cz kontaktní formulář
 
Inzerát zapsán:20. 2. 2009
Zobrazení:2121x
Sdílet:Bookmark and Share
* Podpořte tento bezplatný server a při kontaktu s prodejcem uveďte, že jste jeho nabídku nalezli na BYTY-DOMY-POZEMKY.cz. Děkujeme!

Zobrazit kompletní nabídku prodejce | Kontaktovat prodejce | Poslat emailem | Vytisknout leták